Site Floor Plan

Sobha Hoskote Site Floor Plan

The Sobha Hoskote floor plan offers thoughtfully designed 2, 3, and 4 BHK luxury apartments across 18 high-rise towers with G + 3 Basement + 54 floors. With over 5,400 premium homes ranging from 1150 sq. ft. to 2450 sq. ft., the project is crafted for modern urban lifestyles with smart layouts, natural ventilation, and elegant interiors.

Unit Size Details

2 BHK

1150 – 1250 Sq. Ft.

3 BHK

1750 - 1950 Sq. Ft.

4 BHK

2200 - 2450 Sq. Ft.

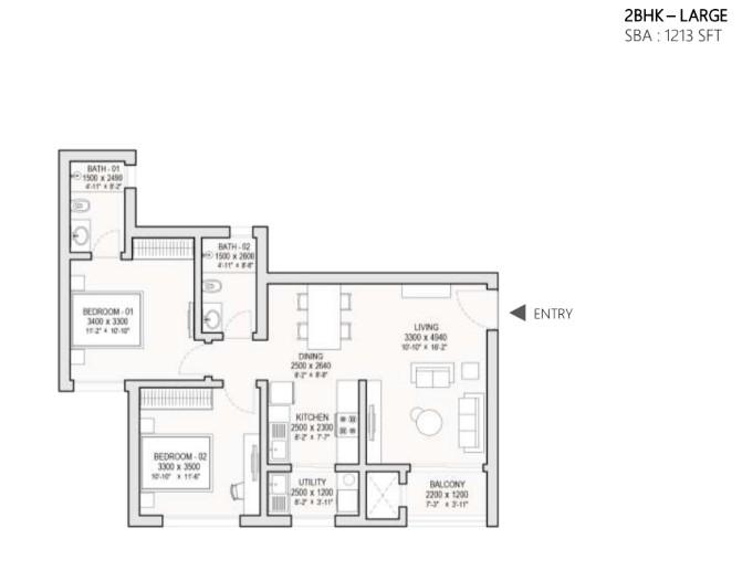
2 BHK Floor Plan

2 BHK Floor Plan

The 2 BHK apartments at Sobha Hoskote are ideal for small families and working professionals. These homes offer a perfect balance of comfort and functionality with well-defined living and private spaces.

  • Size: 1150 – 1250 Sq. Ft.
  • Foyer, living & dining area
  • 2 bedrooms & 2 bathrooms
  • Kitchen with utility space
  • 2 balconies with open views

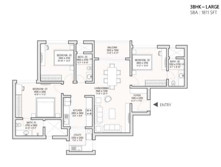
3 BHK Floor Plan

4 BHK Floor Plan

Designed for growing families, the 3 BHK apartments offer spacious layouts with enhanced privacy and comfort. The homes are planned to provide flexibility and efficient use of space.

  • Size: 1750 - 1950 Sq. Ft.
  • Smart & Luxe variants available
  • 3 bedrooms & 3 bathrooms
  • Large living & dining space
  • Kitchen with utility & multiple balconies

4 BHK Floor Plan

4 BHK Floor Plan

The 4 BHK apartments are crafted for luxury living, offering expansive layouts for large families. These homes feature premium interiors, large balconies, and spacious living areas with scenic green views.

  • Size: 2200 - 2450 Sq. Ft.
  • Smart & Grand variants available
  • 4 bedrooms & 4 bathrooms
  • Spacious living & dining areas
  • 3 balconies with landscaped views

Smart Design Features

  • ✔ No facing apartments for better privacy
  • ✔ Balconies facing green open spaces
  • ✔ Vaastu-compliant layouts
  • ✔ Zero dead space planning
  • ✔ Excellent ventilation & natural light
  • ✔ Spacious corridors and smooth layout flow

Modern Township Living

Spread across 48 acres, Sobha Hoskote is designed with a focus on open spaces, landscaped gardens, and premium lifestyle amenities. The project offers a peaceful environment with modern infrastructure, making it ideal for comfortable and future-ready living in East Bangalore.